Mayfair Towers
Project: Mayfair Towers
Scope: Renovation and Interior Design
Completed: March 2024
Location: Upper West Side, New York City
Client: Confidential
Contractor: East End Builders
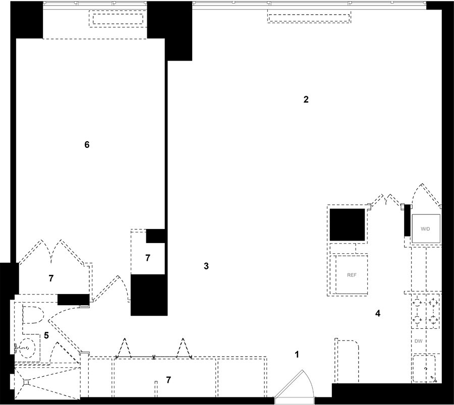
Floor Plans
1 Entry
2 Living Room
3 Dining room
4 Kitchen
5 Bath
6 Bedroom
7 Closet
Before Photos

