Saint George Nave
Project: Saint George Tropeoforos Greek Orthodox Church
Scope: Interior Renovation of the Sanctuary, and Altar
Completed: February, 2021
Location: Midtown, New York City
Client: Saint George Tropeoforos Greek Orthodox Church
Contractor: S&T Construction Inc
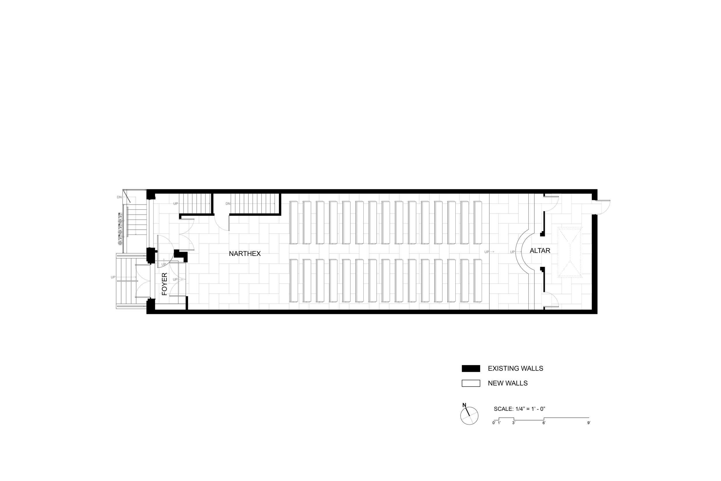
Floor Plan
Before

